HOME
大会長挨拶
開催要項
プログラム
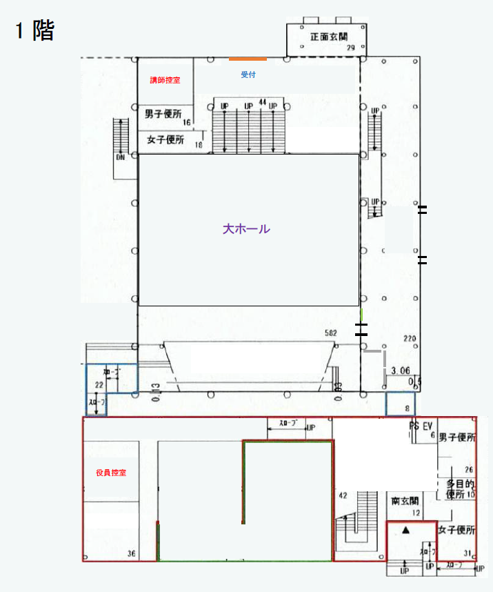
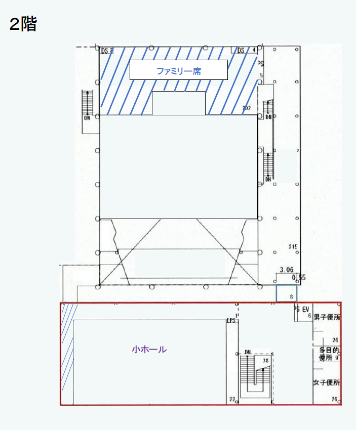
会場配置図
参加登録
演題・各種プレゼン申し込み
参加者へのご案内
発表者へご案内
お子様連れで参加の方へ
懇親会のご案内
会場アクセス
企業の皆様へ
お問い合わせ
日本小児歯科学会第44回中四国地方会大会・総会のHP
TOP
地方会の案内
中四国地方会
日本小児歯科学会第44回中四国地方会大会・総会のHP
会場配置図
会場配置図